Производство сухого профилированного бруса
Современное высокотехнологическое оборудование позволяет производить брус высокого качества!
8 (351) 777 23 79 Отдел продаж
8 (919) 408 23 79 WhatsApp, teleg
В стеновой комплект входит:
- Сухой профилированный брус для самостоятельной сборки;
- Коньковая часть, фронтоны, консоли и столбы террасы;
- Высота потолков 3 метра, нижняя часть стены заложена под половые лаги;
- Нарезка чаш на высокоточном оборудовании с двойным ветровым замком;
- Нарезка паза под обсадную коробку в межкомнатных стенах;
- Сверление вертикальных каналов под электрику в межкомнатных стенах.

Брус 90 мм в разрезе

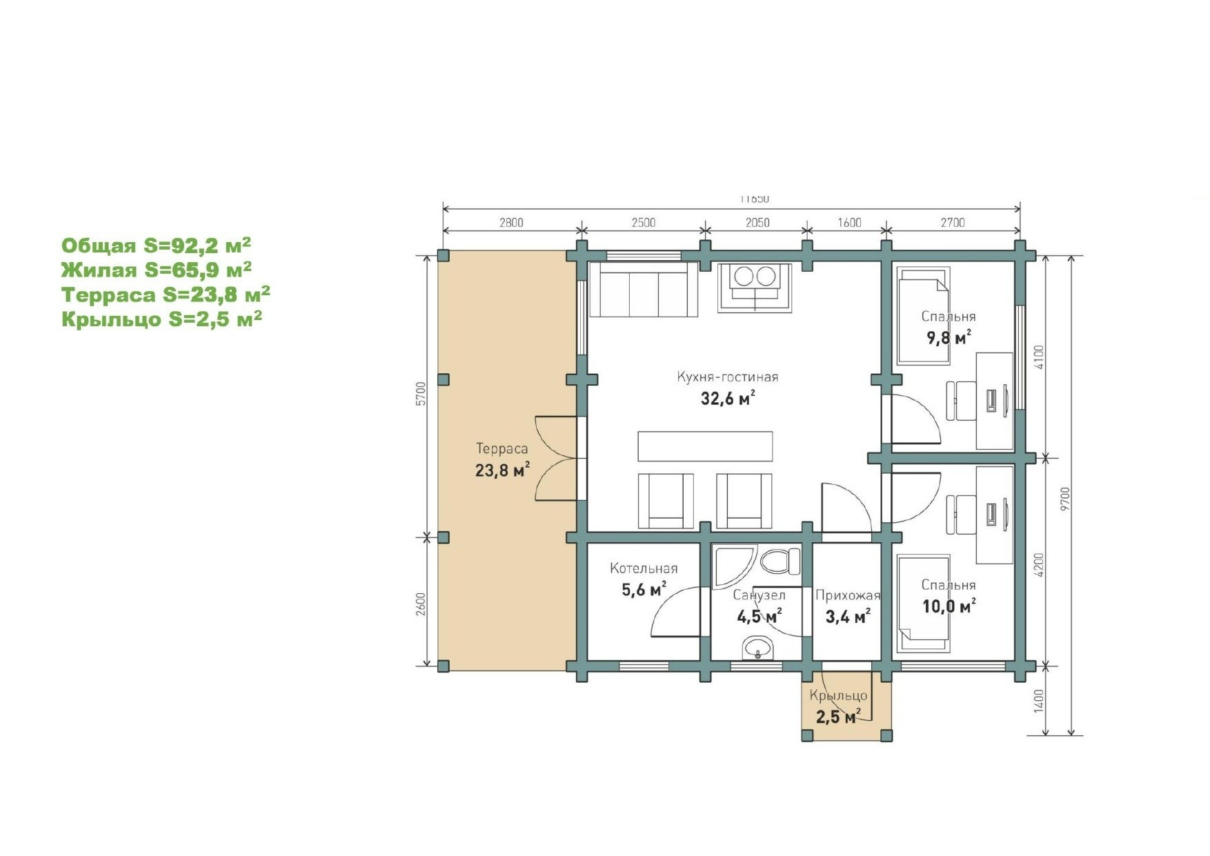
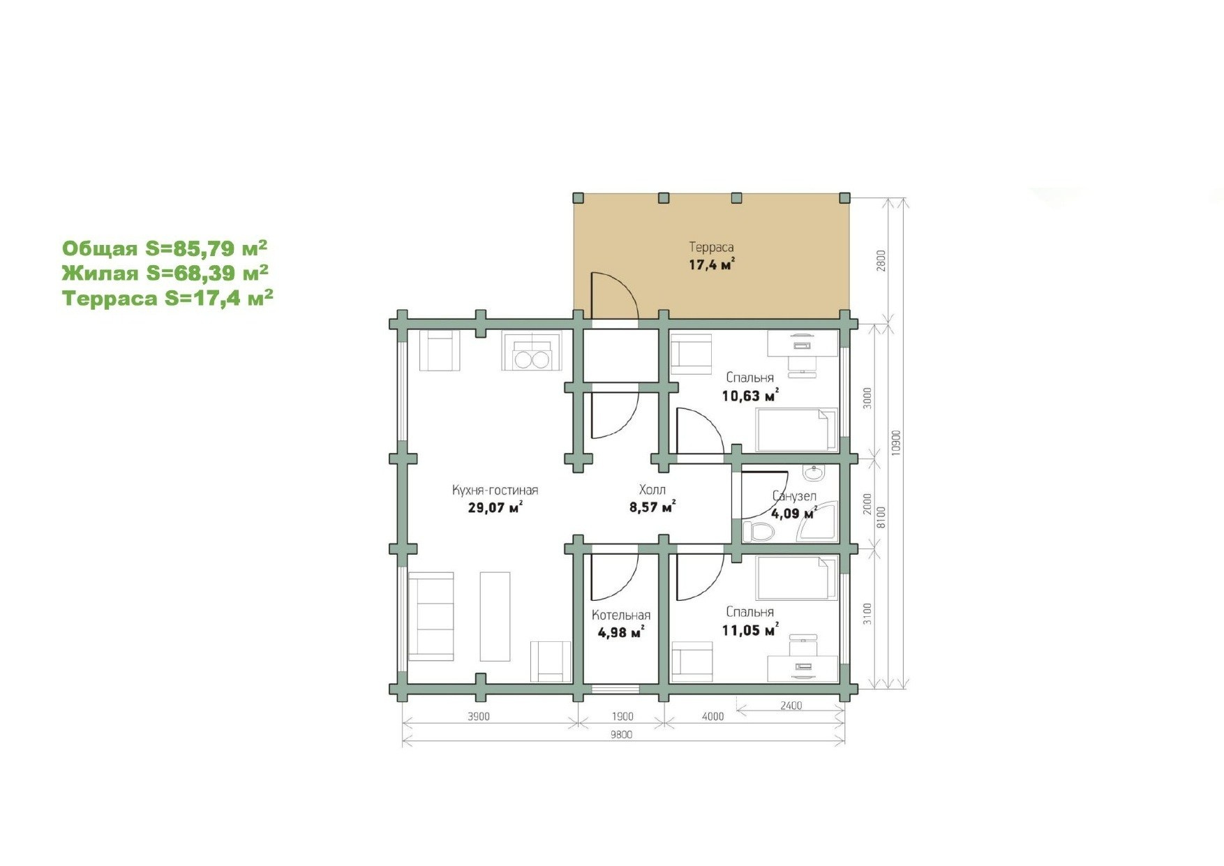
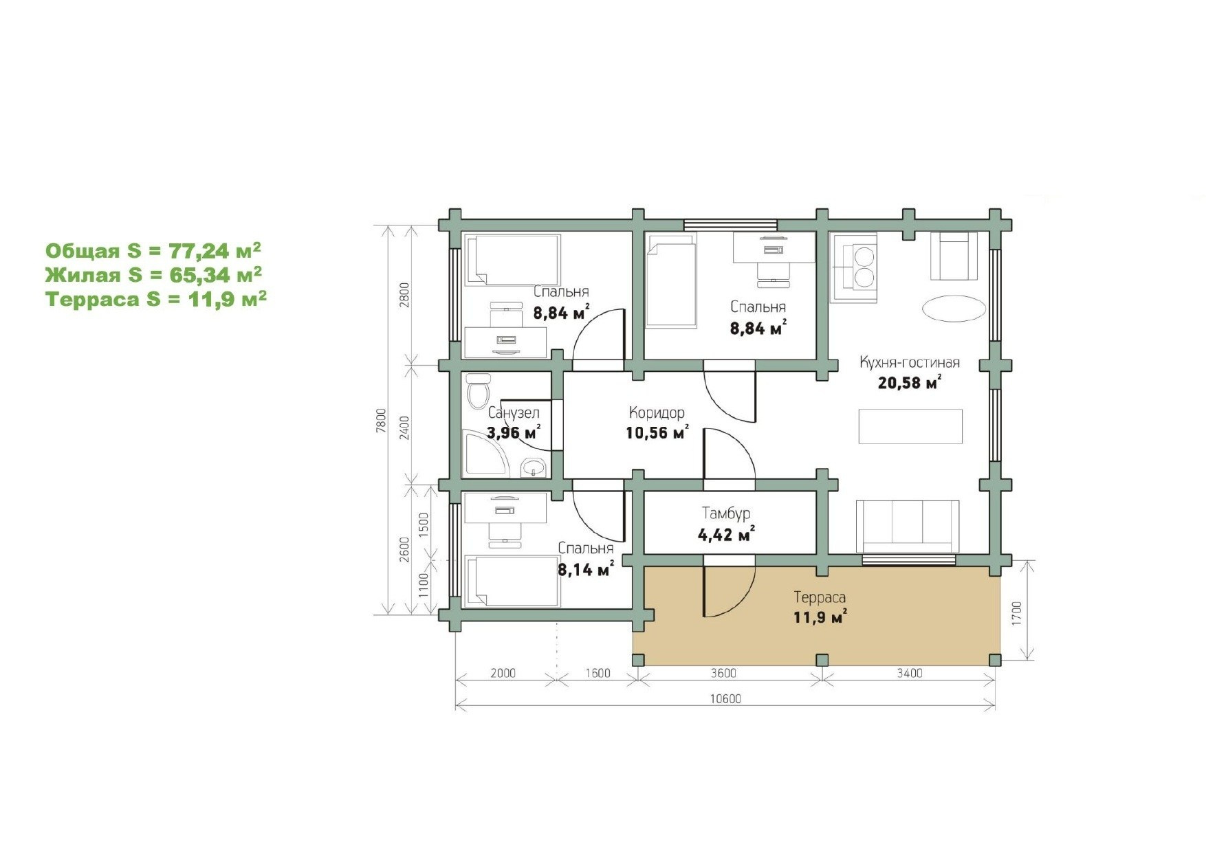
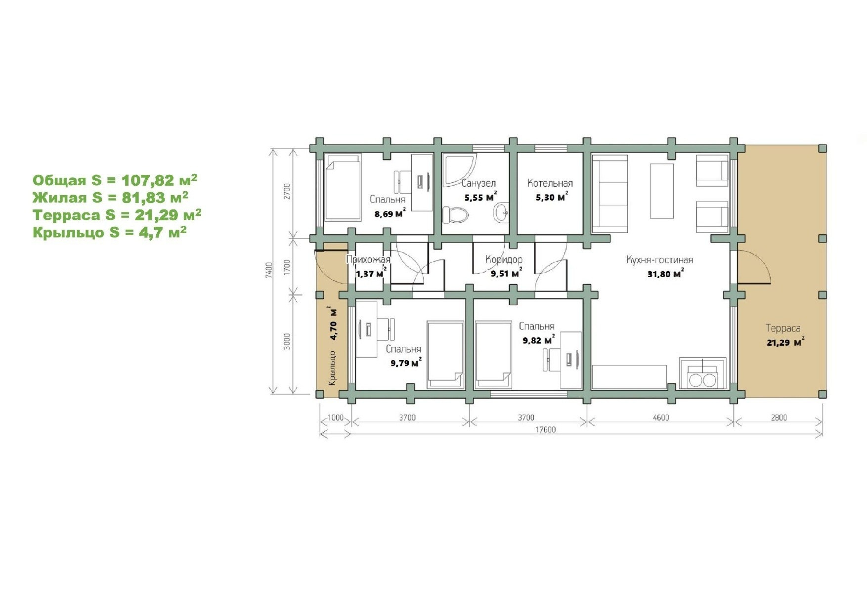
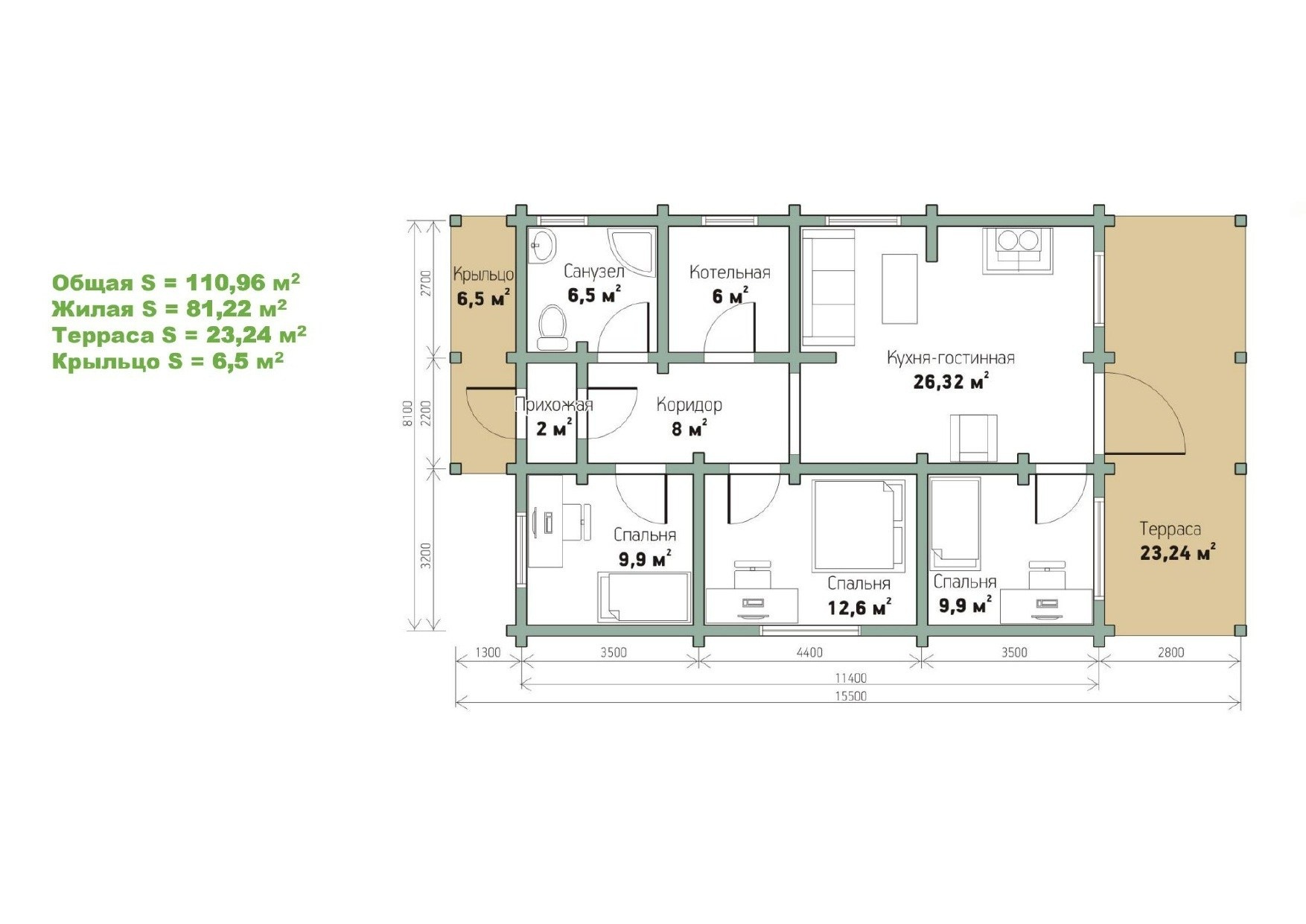
Типовые проекты
Наше производство
ИП Чуйков Владимир Юрьевич ИНН745 009169326
+7 (351) 777-23-79 +7 (919) 408-23-79
пос. Есаульский, ул. Российская, стр. 21



































