
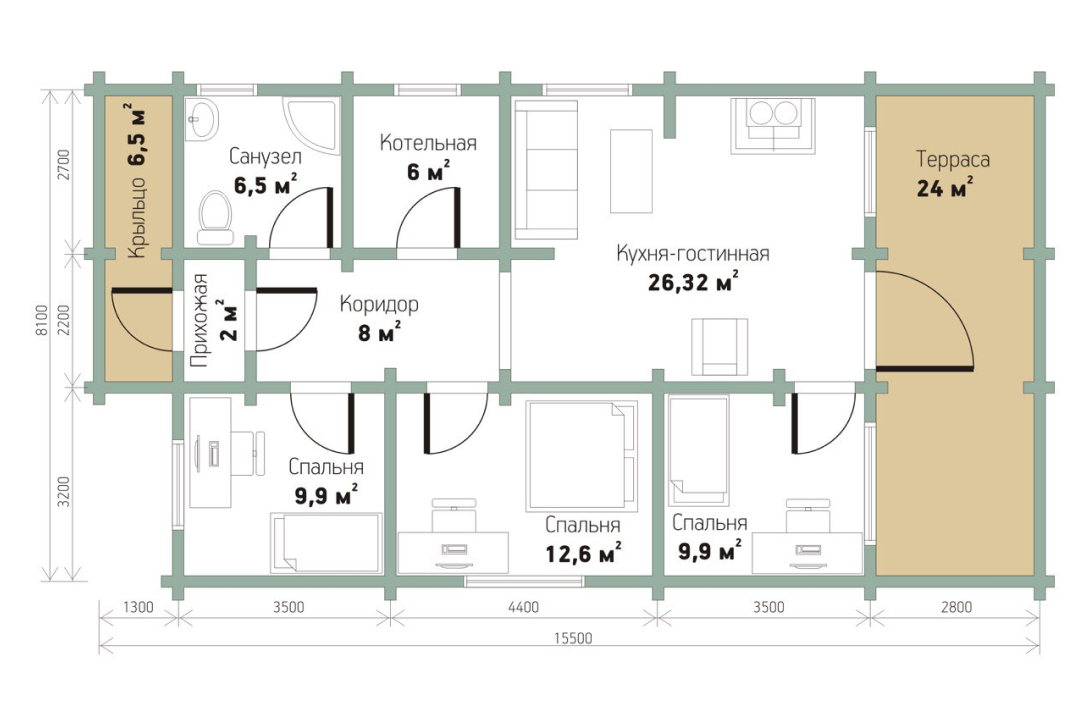
ОБЩАЯ ПЛОЩАДЬ
111.72 м²
ГАБАРИТЫ ДОМА
8.1×15.5
ЖИЛАЯ ПЛОЩАДЬ
81,22 м²
ЭТАЖИ
1
ПЛОЩАДЬ ТЕРРАСЫ
24 м²
МАТЕРИАЛ
Профилированный брус
Проект этого дома представляет собой просторную площадь в 112 квадратных метров, разделенную на студию и три спальни. Студия объединяет гостиную, кухню и столовую, создавая открытое и уютное пространство для семейных посиделок и встреч с друзьями. Три спальни обеспечивают комфортное размещение для членов семьи или гостей. Дом имеет практичную планировку, обеспечивающую удобство и функциональность каждого помещения. Этот проект идеально подходит для семьи, ценящей комфорт и уют в своем жилище.
Стоимость под ключ
6 600 000 р.
Комплектация
01. ФУНДАМЕНТ:
свайно-винтовой (нкт)
02. КРОВЛЯ:
металлочерепица
03. УТЕПЛЕНИЕ ПОЛА:
250 мм
04. ЭЛЕКТРОПРОВОДКА
негорючий кабель ввгнг
05. МАТЕРИАЛ СТЕН:
профилированный брус 190×140
06. УТЕПЛЕНИЕ КРОВЛИ:
200 мм
07. КОТЕЛ:
газовый или электрический
08. ОТОПЛЕНИЕ:
алюминиевые радиаторы, трубы
09. ОКНА:
профиль 70 мм, ширина стеклопакета 40 мм
10. КАНАЛИЗАЦИЯ:
выгребная яма, утепление, греющий кабель
11. ВОДОСНАБЖЕНИЕ:
скважина и насос
12. ЭЛЕКТРОЩИТ
распределительный щит с автоматами schneider
Отделка
01.ДВЕРИ МЕЖКОМНАТНЫЕ:
из массива
02.СВЕТ:
розетки, выключатели, светильники
03.ПОЛ:
ламинат
04.КЕРАМОГРАНИТ
с теплым электрическим полом
в санузле, котельной
прихожей и зоне кухни
05.ПОТОЛКИ:
натяжные
06.ВХОДНАЯ ДВЕРЬ
пвх





















